Baxi eco four 24 f цена в москве: Котёл Baxi EC...
Газовый котел Baxi MAIN Four 24 Бакси купить ко...
Теплообменник BAXI Телообменник битермический д...
⏩ ГАЗОВЫЙ ДЫМОХОДНЫЙ КОТЕЛ BAXI ECO FOUR 24 CSE...
Baxi Mainfour 24 - Zbozi.cz
ᐉ Baxi ECO 4s 24 – газовый котел Бакси с естест...
Теплообменник для котла BAXI MAIN 18/24 Fi Main...
Котел Baxi ECO Four 24 , сюрприз от итальянцев ...
Запчасти и аксессуары для котлов BAXI MAIN Four...
Настенный газовый котел Baxi Main Four 24 F (Ба...
Baxi Main 24Fi – купить в интернет-магазине OZO...
Настенный газовый котел Baxi Main Four 24 F - в...
Купить Газовый котел Baxi Eco Four 1.24 F в Ниж...
ЦИРКУЛЯЦИОННЫЙ НАСОС НА КОТЕЛ BAXI MAIN FOUR, F...
Теплообменник битермический для Бакси Майн Фор ...
Бакси майн фор 240 ф запчасти: Запчасти для кот...
Газовый котел baxi main 24 fi: инструкция по эк...
Baxi eco four 24 f - газовый настенный котел 24...
BAXI Котел ECO Four 24 F, купить, цена, отзывы,...
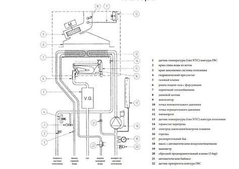
Схема газового котла бакси майн фор 240ф - фото
Газовый котел Baxi ECO Nova 24 F артикул 100021...
Бакси экофор 24 f – Технические характеристики ...
Газовый котел бакси 24 эко фор на запчасти купи...
Устройство котла бакси майн 24 i
Baxi ECO Four 24 F - Газовый настенный котел 24...
Газовый котел Baxi ECO Four 24 F | Купить во Вл...
Настенные газовые котлы Baxi мощностью 24 квт, ...
Газовый котел Baxi ECO Four 24 F — купить в инт...
Электронная плата для Бакси майн фор купить в В...
Газовый котел Baxi (Бакси) ECO Four 24i, двухко...
Датчик Гвс Бакси – купить в интернет-магазине O...
Купить Газовый настенный котел Baxi ECOFOUR 24 ...
BAXI ECO Four 24 F Котел газовый настенный CSE4...
ECO Four 24 F | купить газовый котел от Baxi в ...