Что такое адаптивная подвеска 🦈 avtoshark.com
Конструкции крыш | Справочник строителя | Кровл...
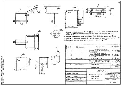
Крепление подкоса У-1, У-2, У-3, У-4, У-5, У-52...
Узлы крепления подкосов
Крепление подкоса У-52, У-52М (21.0050 10.01) 7...
Что такое подкосы для опалубки: использование о...
Купить Крепление подкоса У1 - цены от производи...
P/N 10018247: For Sale SIEMENS Magnetom Trio MR...
Крепление подкоса У-1И (1.10-20.МИ.08-41) 7,50 кг
Заказать крепление подкоса У71 к опоре ЛЭП | За...
Крепление подкоса У52 цена от производителя - З...
Подкос винтовой 2-х ур. 6,0м | Купить опалубку ...
Крепление подкоса У-52И (1.10-20.МИ.15-82) 7,10 кг
Крепление подкоса У71 цена от производителя - З...
Адаптер подкоса DUO купить от производителя
Узел крепления подкоса М10-35 (арх. №04565П) 33...
Крепление подкоса под опору СВ 105 - купить в У...
Подкос двухуровневый для опалубки купить в Моск...
ПЕ Адаптор с външна резба ф63 х 2 - Джоджи Поли...
УЗЕЛ КРЕПЛЕНИЯ ПОДКОСА КП-1А ZN. Цена без НДС к...
Крепление подкоса У71 - Энергопром
УЗЕЛ КРЕПЛЕНИЯ ПОДКОСА КП-1А ZN: продажа, цена ...
Крепление подкоса У52 - Энергопром
Адаптер TRIO-подкос, оцинкованный купить от про...
Выпрямляющий замок BFD, оцинкованный купить от ...
Ввели универсальный адаптер под 3" и 4" насосы ...
Подкос - ООО ХимСтройСнаб официальный сайт
Узел крепления подкоса У1М: продажа, цена в Мин...